MANOR
MANOR
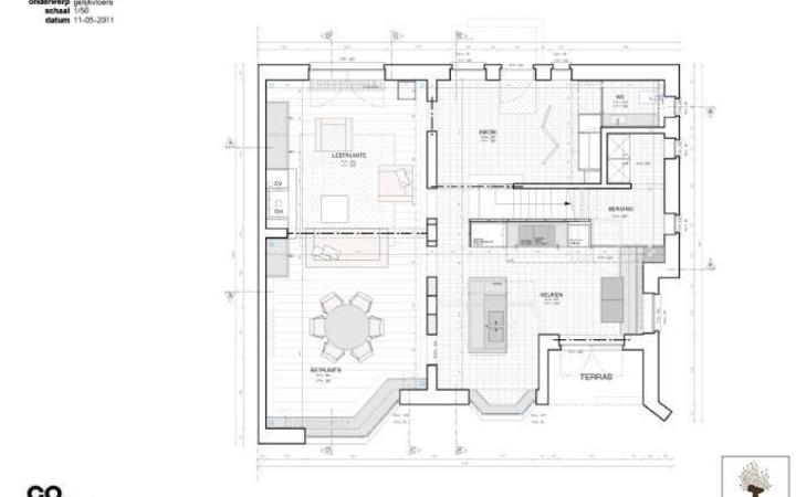
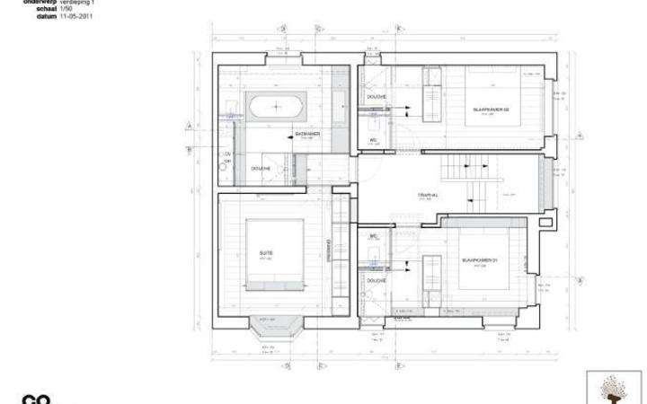
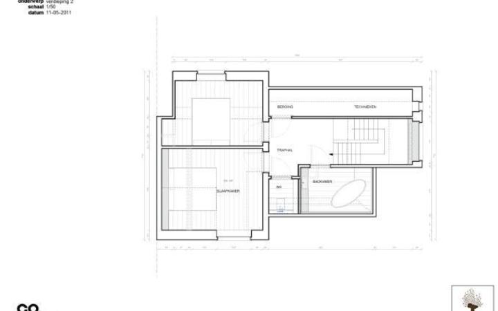
Projet de rénovation: Charmante villa - sur un terrain de +/- 600 m² - au coeur du vieux Zoute, à un souffle de la mer et des plaisirs de la plage, des commerces du vieux Zoute, de l’avenue du Zoute et près du minigolf. La villa dispose d’une entrée avec vestiaire et toilettes. Un salon et une salle à manger. Un coin à déjeuner. Une cuisine avec accès au jardin. Un escalier menant au premier étage avec 3 chambres à coucher, 1 salle de bains. 2 salles de douche. Au deuxième étage, il y a encore 2 chambres à coucher avec 1 salle de bains et un grenier. Il y a un grand garage interne séparé de la villa. Les travaux commencent en septembre. Plans et visualisations disponibles après rendez-vous en nos bureaux. Le "Manor" : jolie démeure à un souffle des plaisirs de la plage...
| Surface habitable: | 300m² |
|---|---|
| Surface terrain: | 350m² |
| PEB: | 243 |
| Code unique: | 500705 |
| Zone inondable: | Niet medegedeeld |
























